Low Causeway, Culross
3 Bedroom House – Detached – Offers Over £390000 GBP
Nestled in the heart of the historic and picturesque coastal village of Culross, this charming ‘B’ Listed Georgian villa, built in 1746, offers a unique blend of period features and modern comforts. This delightful Detached Cottage boasts three well-proportioned bedrooms, a spacious lounge with french doors to extensive garden grounds, WC, kitchen/dining room and bathroom, making it an ideal family home or a tranquil retreat.
The extensive private walled gardens are a true highlight of this home. With mature trees, including pear and apple, as well as a raspberry patch and a vegetable garden, the outdoor space is perfect for gardening enthusiasts. The beautifully paved patio and various seating areas provide an idyllic setting for al fresco dining or simply enjoying the outstanding views of the Firth of Forth and the distant Pentland Hills.
With private parking for one vehicle and its prime location at the start of the Pilgrims Way, this property is not only a home but also a gateway to exploring the rich history and natural beauty of the area.
Early viewing is highly recommended to fully appreciate the excellent development potential, stunning location, and wonderful gardens that this property presents.
-
DESCRIPTION –
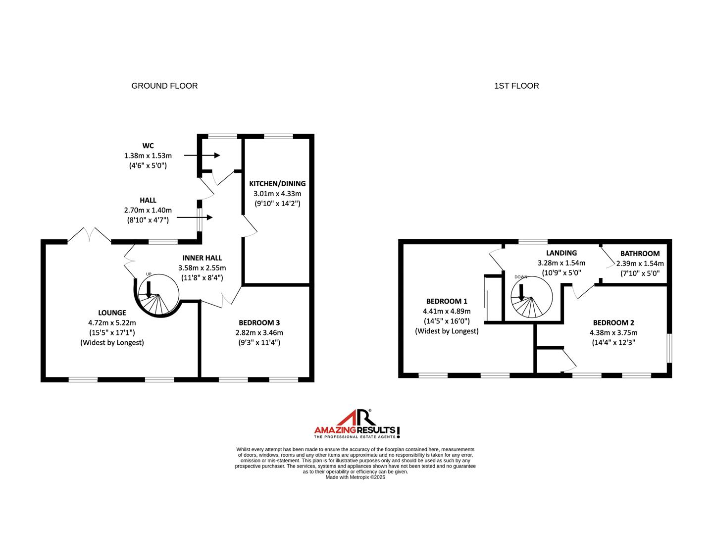
As you enter, you are welcomed by an inviting entrance hall that leads into an inner hall with spiral stair rising to the upper floor. A delightful lounge with study area features a multi-fuel stove that not only adds warmth but also heats the central heating system, ensuring a cosy atmosphere throughout the year. French doors lead from the lounge to a beautiful paved patio area and the extensive walled gardens that cannot fail to impress! There’s also a good-sized double bedroom with feature multi-fuel stove, spacious fitted kitchen/dining room with built-in appliances and WC on the ground floor.
The spiral staircase adds a touch of elegance and character, leading you to the upper level of the home and boasts a bright landing with lovely views across the gardens. Two substantial double bedrooms with pleasant open aspects and a modern family bathroom complete the upper floor.
The property benefits from secondary glazing, enhancing energy efficiency while preserving its historical charm.
Early viewing is highly recommended to fully appreciate the accommodation, character and wonderful gardens offered with this outstanding ‘B’ Listed’ Period Cottage that could be your dream home!
Call your local Professional Estate Agent Colin Jenkins today to book your viewing appointment.
LOCATION –
Newgate House is set back off the main road on the edge of the conservation village of Culross. A lively, friendly community, Culross is one of the most complete examples in Scotland of a 17th Century Royal Burgh and is widely acknowledged as one of the most picturesque villages in Scotland used in numerous film sets including the TV drama “Outlander”.
Culross enjoys a superb riverside setting on the Firth of Forth with its white-harled 16th and 17th century houses and cobbled streets including an ochre-coloured Palace with its beautifully reconstructed period garden, complete with herbs, fruit, vegetables and rare Scots Dumpy hens sitting at the centre of The Royal Burgh. Culross is a beautiful and historic coastal sea-port village dating back to medieval times yet lying just 12 miles west of the Forth Road Bridge and now has a vibrant social community for both adults and children with a small primary school, parks, eating places as well as a gallery, renowned Pub/Restaurant and pier. The village is served with good bus links and is within easy commuting distance to both Edinburgh and Glasgow. Dollar Academy is 14 miles to the north. The house is also well positioned for the Edinburgh Schools including Cargilfield Prep School, Fettes and George Watsons College. Edinburgh.
This very special home is superbly located for the many amenities and facilities at the nearby city of Dunfermline, Scotland’s historic capital, a bustling city with a good road and rail network making it one of the most accessible in central Scotland. Dunfermline has a broad range of amenities including professional services, a good retail offering and leisure facilities including the principal bus station on Queen Anne Street and educational establishments associated with a modern City. The mainline railway station at Inverkeithing offers regular and direct services to Edinburgh’s stations, including Waverley (under 35 minutes), Edinburgh Gateway (under 25 minutes) and Haymarket (under 30 minutes). Edinburgh International Airport is only 16 miles away and there’s easy access to M90 and Scotland’s major motorway network.
KEY FEATURES –
• Charming 18th Century Cottage
• Sought-After Village Setting
• Character & Charm
• Bright Spacious Lounge/Study
• Kitchen/Dining Room
• 3 Double Bedrooms
• WC & Family Bathroom
• Multi Fuel Heating & Secondary Glazing
• Generous Walled Cottage Garden & Parking
GARDENS & PARKING –
To the front of the cottage there is a private parking space. To the rear, is a wonderful, mature walled cottage garden that will delight all who view! The generous garden grounds offer excellent potential and included within this private garden is a large outbuilding, shed, greenhouse, areas of lawn as well as patio and seating areas to enjoy the outstanding views across the Firth of Forth and beyond to Pentland Hills. Additionally, the property includes a workshop and a garden shed, offering ample storage and workspace for your hobbies.
EXTRAS –
All fitted floor coverings are built-n kitchen appliances are included in the purchase price.
INTERESTED IN VIEWING THIS HOME? –
Viewing by appointment. Call your local Estate Agent, Colin Jenkins to see this property. 01383 699 000.
MORTGAGE ADVICE –
Want to make sure you are getting the best mortgage rate? Compare 1,000’s of great mortgage deals. It’s fee-free independent mortgage advice that could save you time and money. Call one of our expert advisers today on 0800 999 1565.
PROPERTY TO SELL? –
Get a no obligation property valuation with your local expert, Colin Jenkins today on 01383 699 000 or book a FREE valuation online at AMAZINGRESULTS.com.
Rated ‘Top Performer’ by GETAGENT.co.uk and with more than 100+ Google 5-Star Customer Reviews, we’re a highly experienced, award-winning Estate Agency team you can trust to sell your property as quickly as possible. Open 7 days a week.
AMAZING SERVICE. AMAZING RESULTS!™
(Property Ref: 18463241)
Schools
Street View









































